桐生市相生町三丁目戸建

800万円

群馬県桐生市相生町3丁目159-8

わたらせ渓谷鉄道「運動公園」駅徒歩8分

上毛電鉄「天王宿」駅徒歩8分

東武桐生線「相老」駅徒歩14分

価格
800万円
間取り/建物面積
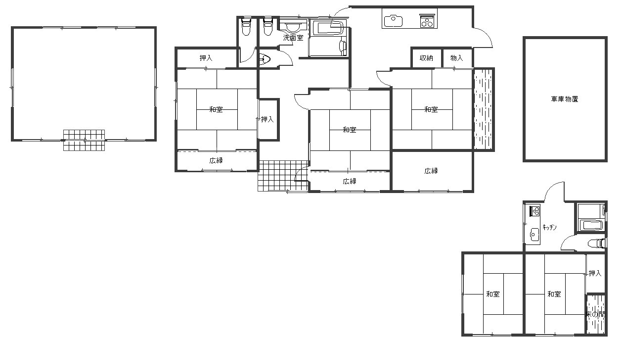
5K/67.89㎡
所在地
群馬県桐生市相生町3丁目159-8
築年
1966年7月(築59年)
駐車
交通

わたらせ渓谷鉄道運動公園」駅 徒歩8分

上毛電鉄天王宿」駅 徒歩8分

東武桐生線相老」駅 徒歩14分

桐生市相生町三丁目戸建の基本情報

物件名
桐生市相生町三丁目戸建
価格
800万円
建物面積
67.89㎡
土地面積
161.74坪(534.71㎡)
築年月
1966年7月(築59年)
総戸数
-
所在地
群馬県桐生市相生町3丁目159-8
交通

わたらせ渓谷鉄道運動公園」駅 徒歩8分

上毛電鉄天王宿」駅 徒歩8分

東武桐生線相老」駅 徒歩14分

桐生市相生町三丁目戸建の詳細情報

設備条件
  • 駐車3台可
設備(その他)
    -
駐車場/月額
有/-
土地権利
所有権
国土法届出
不要
用途地域
第一種住居
取引態様
仲介
引渡し
即時
備考
「桐生市相生町三丁目戸建」のここがイチオシ。立地する第一種住居地域は、大規模な店舗や事務所の建築を制限しており、パチンコ屋や一般的な工場などは建てることができない地域なので住居地としても利用されています。東南側の道路に面する物件は資産価値が高いのでおすすめです。駅から徒歩8分圏内に立地しています。より快適に暮らせる住まいをお探しなら、不動産情報と知識を豊富に取り扱っている当社にご用命ください。お客様の生活スタイルや希望される条件に適した物件のご紹介を致します。

桐生市相生町三丁目戸建のコメント(おすすめポイント)

立地する第二種住居地域とほぼ同じである一方、パチンコ屋や麻雀屋、カラオケボックスなどを建てることができない点で異なるのが第一種住居地域です。通勤・通学のときの道のりの負担を抑えることができる平坦地の物件です。こちらは中古の戸建てです。土地面積は534.71㎡(公簿)でございます。当社では豊富な不動産情報をご用意して、お客様をお待ちしております。皆様がより良い暮らしを送れるような不動産を紹介いたしますので、ぜひご利用ください。

桐生市相生町三丁目戸建で募集中の物件

  1. 20.53坪 (67.89㎡)

    800万円(38.97万円/坪)

近隣の物件

  1. 桐生市錦町2丁目

    1R (301.93㎡)

    550万円

  2. 桐生市境野町1丁目

    3LDK (132.70㎡)

    1,580万円

  3. 桐生市堤町3丁目

    3DK (68.73㎡)

    330万円

  4. 桐生市梅田町4丁目

    3DK (72.72㎡)

    850万円

よく見られている物件

  1. 桶川市大字加納

    3DK (68.17㎡)

    420万円

  2. 熊谷市妻沼

    5K (106.76㎡)

    250万円

  3. 川越市広谷新町

    4LDK (114.13㎡)

    1,790万円

  4. 前橋市亀里町

    4LDK (185.53㎡)

    3,630万円

桐生市相生町三丁目戸建

お気軽にお問い合わせください

無料お問い合わせ

シュガー株式会社

042-307-9170

9:00~18:00

(休:不定休)